欢迎来到湖南弘跃舒适环境系统工程有限公司!
服务热线

13637414687

您的位置: 网站首页  >> 客户案例  >> 中央空调  >> 查看详情

长沙中央空调水映加州案例 无火连接工艺

时间:2018-07-28     作者:http://ihomeyes.com/

本方案为别墅,根据业主的生活习惯,采用全房长沙中央空调无火工艺施工,让施工更安全放心。长沙中央空调品牌采用格力中央空调。

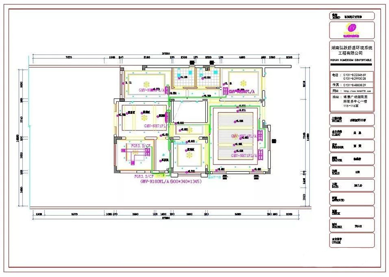
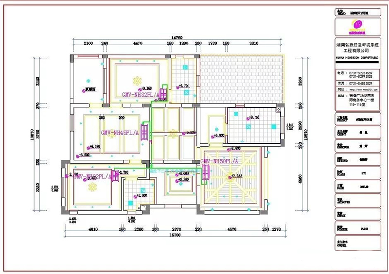
水映加州图

水映加州方案设计图

水映加州方案设计图

水映加州方案设计图

▲静音安装工艺:

室内机吊装,使用特制减震吊杆组件,有效减少室内机噪音,延长设备寿命。

静音安装工艺: 给你一个安静的舒适家庭环境。

水映加州中央空调安装图

▲节能保温工艺:

被覆式冷媒铜管,进口99.99%纯度的无氧紫铜管,采用美国生产工艺标准,抗腐蚀性强,与建筑物同寿命。

ACPE保温管,欧美国家标配环保材料,无毒防火,减少能量运输的浪费。

节能保温工艺:让中央空调更节能,使用寿命更长。

水映加州中央空调安装图


▲异味隔离工艺:

被覆ACPE保温冷凝水管与异味隔离器组合安装,彻底避免沼气侵入和污水回流,以及蚊虫滋生问题。

异味隔离工艺:让环境更安全。

水映加州中央空调安装图


▲静音安装工艺:

室外机添加主机减震垫:降低噪音、延长室外机寿命。

静音安装工艺: 给你一个安静的舒适家庭环境;延长设备寿命。

......

水映加州中央空调安装图

 

▲无火连接安装工艺优势:

无需担心,因为施工中没有充氮焊接导致管道产生的焊渣对设备的损害,延长设备寿命。

最干净的冷媒系统!

水映加州中央空调安装图

 

无需担心,施工中因为明火焊接导致的火灾隐患。

安全的连接工艺!无需等待,焊接所需各种用气瓶具及其运输和等待时间。

方便的施工方法!无需忍受,明火焊接时伴随的高温和废气污染。

环保的施工现场!无需顾虑。因为有快捷高效的安装工具,提高了施工效率,确保施工质量。

高效的施工工艺!静音安装,管道保护,节能保温

水映加州中央空调效果图

水映加州中央空调效果图


无火连接工艺
长沙中央空调制冷管路装配带来了革命性的改变,
这些离不开制冷配件制造商们的努力与创新。

长沙中央空调无火工艺图

更多无火工艺细节及视频,欢迎来弘跃暖通旗舰店:
旗舰店地址:长沙市芙蓉区东二环锦泰广场北侧国际商务中心一楼115-116#
(地铁二号线锦泰广场站3号出口往北200米)

长沙中央空调图

弘跃暖通定制方案

CUSTOMIZED PROGRAMS

*建筑户型:    *建筑面积:   
*您的姓名:    *联系电话:   

方案需求:

Copyright © 2006-2018 湖南弘跃舒适环境系统工程有限公司 版权所有 All rights reserved. 湘ICP备17002662号-1 技术支持:智优营家