南山雍江汇是由我们弘跃暖通胡师傅施工团队(施工中央空调)所施工的 南山雍江汇长沙中央空调 的施工工地。

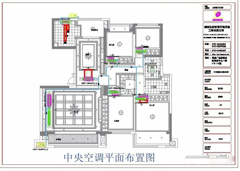
本案例 小区CAD设计 全房 中央空调 平面布置图

本方案 设计 方案 及详细配置表 中央空调(部分)
本方案为平层,根据业主的生活习惯,采用全房中央空调,中央空调采用格力中央空调。



湖南弘跃施工工艺优势:
三分产品、七分安装,施工工艺是成败的关键,可直接破坏装修。弘跃优质的施工工艺源自于从技术设计、产品和辅材采购、仓储运输、工程现场管理、质量巡检、工程回访、竣工验收、档案存档、服务回访等完善的建立。源于健全的技术部、采购部、储运部、工程部(微信)、售后部(微信),以及优秀的团队。
.jpg)